รหัสสินทรัพย์ : 55467
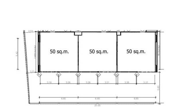
ให้เช่าพื้นที่ชั้น1 80 ตร.ม. ย่านทองหล่อ ซอยทองหล่อ25 อพาร์ทเมนท์ ริมถนน เหมาะทำคาเฟ่และอื่นๆ
ราคาเช่า 50,000+Vat 7 % ( 50 ตารางเมตร ฟรีพื้นที่ ด้านนอก 30 ตรม )
(ประกัน 2 เดือน ล่วงหน้า 1 เดือน สัญญาเช่าสามารถทำ 3ปี + 3ปี )
ที่ตั้ง ถนนสุขุมวิท ซอย ทองหล่อ25 ซอยพร้อมพรรค แขวงคลองตันเหนือ เขตวัฒนา กรุงเทพมหานคร 10110
ติดต่อ : คุณภัสพงณ์ 0634098164
Line ID : deedaa23
พื้นที่ 80 ตร.ม. 50 ตร.ม ด้านใน และ 30 ตร.ม ด้านนอก พร้อมที่จอดรถ
- ค่าน้ำ 20 บาท ต่อยูนิต
- ค่าไฟฟ้า 7 บาท ต่อยูนิต
เดินท่อน้ำและไฟฟ้าให้เรียบเรียแล้ว สามารถเข้าตกแต่งได้เลย
ราคาเช่า 50,000+Vat 7 % ( 50 ตารางเมตร ฟรีพื้นที่ ด้านนอก 30 ตรม )
(ประกัน 2 เดือน ล่วงหน้า 1 เดือน สัญญาเช่าสามารถทำ 3ปี + 3ปี )
ที่ตั้ง ถนนสุขุมวิท ซอย ทองหล่อ25 ซอยพร้อมพรรค แขวงคลองตันเหนือ เขตวัฒนา กรุงเทพมหานคร 10110
ติดต่อ : คุณภัสพงณ์ 0634098164
Line ID : deedaa23
PL. Real Estate Broker
http://www.kaibaanteedin.com
บริการรับฝากขาย คอนโด บ้าน ที่ดิน อสังหาริมทรัพย์ทุกชนิด
รหัสอ้างอิง : -66901
| รหัสสินทรัพย์ : | 55467 |
| ประเภท : | อาคารพาณิชย์/ตึกแถว(ตัวแทน อสังหาริมทรัพย์ (Broker)) |
| ประเภทประกาศ : | ประกาศให้เช่า |
| ราคาเช่า : | 50,000 บาท
|
| จังหวัดที่ตั้ง : | กรุงเทพมหานคร |
| ที่ตั้ง : |
-พื้นที่ชั้น1 80 ตร.ม. ย่านทองหล่อ ซอยทองหล่อ25
|
| เขต/อำเภอ : | เขตวัฒนา |
| แขวง/ตำบล : | คลองตันเหนือ |
| ถนน: | -ถนนสุขุมวิท |
| ย่าน: | -ทองหล่อ |









ดูแผนที่
